rochester
Finished Basement option
*Additional square footage available with added basement. Various options available for basement, floorplan, and garage configuration
Plan Description
This L-shaped, 1.5-story Modern Farmhouse plan showcases distinctive exterior elements, including dual fireplaces, standing seam metal roofs, expansive front and rear porches, and classic board and batten siding. The design blends traditional charm with contemporary flair, offering an inviting and functional layout.
Upon entry, a dramatic two-story wood-beamed cathedral ceiling defines the great room, creating a striking focal point. Tall windows beneath shed roofs frame both the front and rear walls, providing uninterrupted views through the front porch and rear patio. The adjacent kitchen features an expansive work island and a beamed ceiling of its own, seamlessly connecting to the open dining area for effortless entertaining.
Located away from the primary living areas, the main-level master suite includes separate walk-in closets, dual vanities, and a well-appointed bath. The suite is accessible via an alcove off the great room or through a secondary route from the laundry area. A second main-floor suite, positioned behind the kitchen, includes a private ¾ bath and walk-in closet.
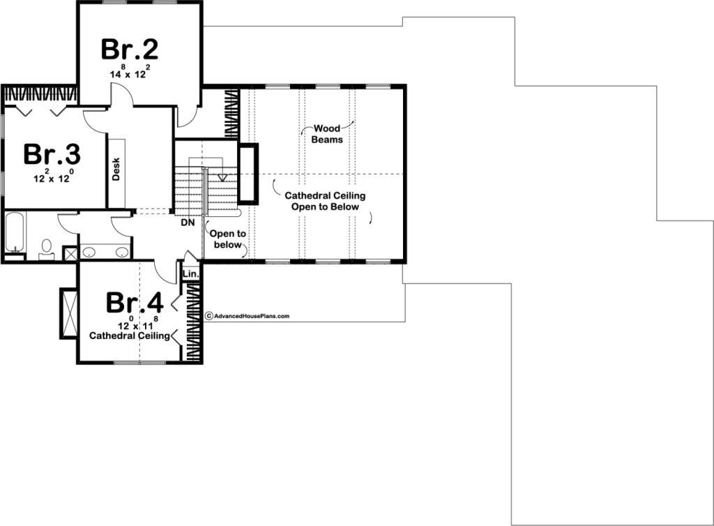
On the upper level, bedrooms 2, 3, and 4 share access to a centrally located hall bathroom. Bedroom 4 is enhanced by a cathedral ceiling, adding vertical space and architectural interest. The main floor also features a generously sized two-car garage with ample space for a workshop. Interior access is provided through a practical mudroom equipped with a bench, built-in lockers, and a coat closet.
This thoughtfully designed home combines rustic elegance with modern efficiency, ideal for a variety of settings and lifestyles.


